mazowieckie, wołomiński, Klembów, Wola Rasztowska

1 390 000 zł

8 115 zł/m2

0% COMMISSION

House for sell - 171.29 sqm, 4 rooms

Area:
171.29 sqm
Number of rooms:
4 rooms
Type of development:
Detached
Finishing condition:
Shell
Market:
secondary
Amenities:
Offer number:
13519/DS/MAX

Rooms

Salon area:
38.84 m2
Type of kitchen:
Open
kitchen
7.31 sqm
Number of bathrooms:
1
Number of toilets:
2
Wardrobe:
Tak
Cell:
Nie

Building

Year of construction:
2026
Number of floors:
1
Construction material:
Blocks
Heating:
gas
Roof:
Metal tile
Type of windows:
pcv
Entry in the register of monuments:
Nie
Safety:
Additional areas:
  • terrace 19.75 m2

The plot and surroundings

Plot area:
1 000.00 sqm
Shape of the plot:
Rectangle
Fence:
Mixed
Access road:
Gravel road
Media:
  • energy: yes
  • gas: yes
  • water: Well
  • sewerage: Tight Cesspool

Description

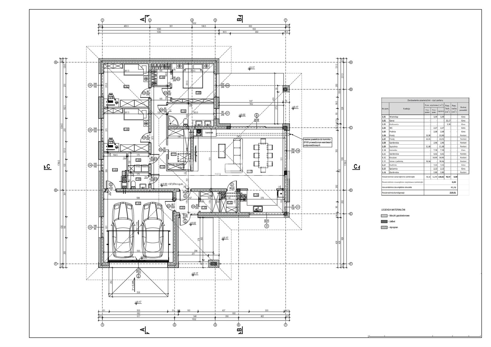
A detached single-story house with an unfinished attic, located in a quiet neighborhood in Wola Rasztowska.

The house, with a floor area of 171.29 sq. m., is situated on a large plot of 1,000 sq. m.

The property is situated in a well-connected area with quick access to the S8 highway and Radzymin. An ideal choice for families with children and those who value peace, space, and privacy, without having to sacrifice the convenience of living close to the city.

If you value a functional floor plan, solid construction, and a large lot—this offer will meet your expectations.
The building features a two-car garage and a spacious driveway. Large windows in the living area provide excellent natural light and a sense of space. Ceiling height: 2.70 m.

The functional layout was designed with the residents’ comfort in mind.

The living area, divided into a kitchen, dining room, and living room, totals 38.84 m², expanded in the summer by a covered terrace.
Additionally:
entryway – 3.39 sq. m.
walk-in closet – 2.96 sq. m.
pantry – 2.13 sq. m.
second walk-in closet – 2.80 sq. m.
bathroom – 7.38 sq. m.
bedroom – 11.68 sq. m.
room – 13.90 sq. ft.
room – 13.91 sq. ft.
laundry room – 2.68 sq. ft.
toilet – 2.27 sq. ft.
boiler room – 5.30 sq. ft.
two-car garage – 35.17 sq. ft.

It is possible to install stairs leading to the attic, which can be converted to suit your needs (e.g., a gym, recreation room, or additional storage space). Underfloor heating is
installed throughout the building.

Utilities and technical solutions:
private water intake (prepared for connection to the municipal water supply) bottled
gas (underground tank)

Location:
to the S8 route – a few minutes (approx. 6 minutes)
to Radzymin – approx. 13 minutes
to downtown Warsaw – approx. 36 minutes
to the M1 Shopping Center and IKEA – approx. 21 minutes
to the new elementary school and preschool – approx. 4 minutes
This is an ideal option for those looking for a modern home on a large lot in a quiet and developing neighborhood.

Location

All locations on the map are approximate.

Floor plan

Don't hesitate to contact us

Adam Brzeziński

Specjalista ds. Nieruchomości

Call:

Zainteresowała Cię nasza oferta lub szukasz podobnej nieruchomości? Zapraszamy do kontaktu!



Near offers

1 270 000 zł

8 944 zł/sqm

142 sqm

5 rooms

1 280 000 zł

9 481 zł/sqm

135 sqm

4 rooms

Exclusivity
0%
1 199 000 zł

7 302 zł/sqm

164 sqm

4 rooms

Exclusivity
889 000 zł

6 396 zł/sqm

139 sqm

4 rooms

Exclusivity
4 rooms, 1 floor, 2024 year, plot area 0 m2
Radzymin , ul. Generała Jana Henryka Dąbrowskiego
1 350 000 zł

11 610 zł/sqm

116 sqm

4 rooms

1/7