mazowieckie, legionowski, Nieporęt, Stanisławów Pierwszy, ul. Swingowa

1 950 000 zł

5 652 zł/m2

EXCLUSIVE

House for sell - 345.00 sqm, 6 rooms

Area:
345.00 sqm
Number of rooms:
6 rooms
Type of development:
Detached
Finishing condition:
Shell
Market:
secondary
Amenities:
Offer number:
13492/DS/MAX

Rooms

Salon area:
60.00 m2
Type of kitchen:
Open
kitchen
25.00 sqm
Number of bathrooms:
3
Number of toilets:
0
Wardrobe:
Tak
Cell:
Tak

Building

Year of construction:
2025
Number of floors:
3
Construction material:
Ceramics
Heating:
gas
Roof:
Metal tile
Type of windows:
pcv
Entry in the register of monuments:
Nie
Safety:
  • alarm
  • intercom
  • monitoring
Additional areas:
  • terrace 57.00 m2

The plot and surroundings

Plot area:
1 212.00 sqm
Shape of the plot:
Rectangle
Plot width:
30.00 m
Length of the plot:
40.00 m
Fence:
Mixed
Access road:
Concrete pavers
Media:
  • energy: yes
  • gas: yes
  • water: Urban
  • sewerage: Urban

Description

A unique house for sale in "Dom pod Dębem." Excellent location in the center of Stanisławów Pierwszy, on Swingowa Street.

Homes rarely come up for sale here. And even more rarely at such an attractive price per square meter—only 5,652 PLN!

This house is a space that offers freedomto live on your own terms, work from home, pursue your passions, and comfortably accommodate even a multigenerational family. It’s not just a house; it’s a lifestyle where there’s room for everything that matters to you.

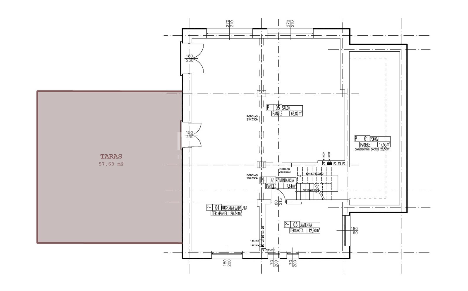
Floor Plan: Ground
Floor:

  • Spacious living room with kitchen and dining area – 84.16 m² (large windows, access to the garden)
  • Study / senior’s room – 17.55 m²
  • Bathroom – 12.60 m²
  • Entrance hall – 8.15 m²
  • Walk-in closet – 16.61 m²
  • Large, covered terrace above the garage – 57.63 m²

First floor:

  • Master bedroom – 24.47 m² + walk-in closet 7.46 m² + private bathroom 12.50 m²
  • Two bedrooms – 17.85 m² and 15.35 m²
  • Bathroom – 6.26 m²
  • Laundry room / walk-in closet – 4.76 m²

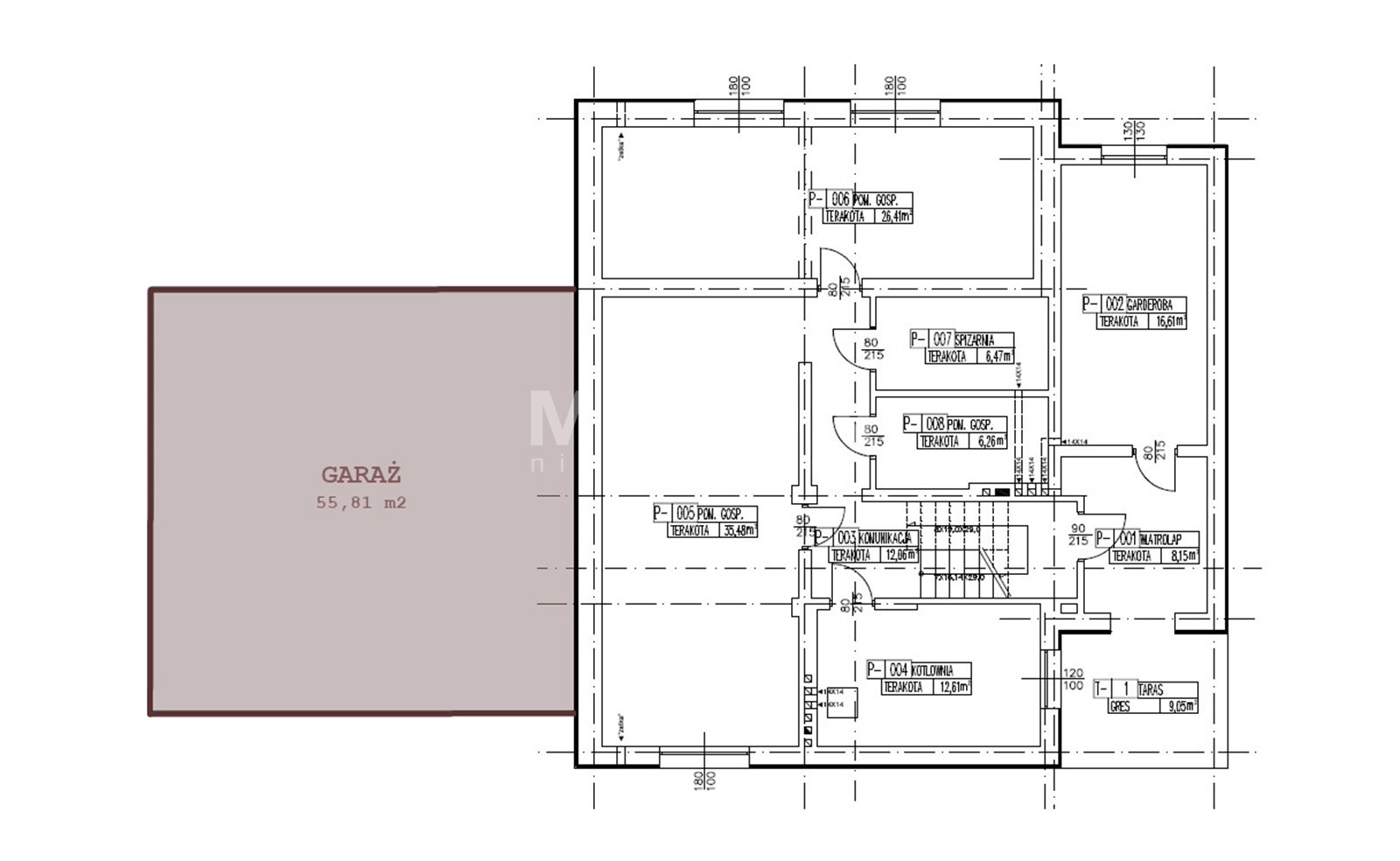
Basement:

  • Home theater – 26.41 sq. ft.
  • Fitness area / recreation room – 29.88 m²
  • Boiler room – 12.61 m²
  • Pantry and utility rooms
  • Garage – 55.81 m²

Attic:

  • Potential for conversion of approximately 60 m²

Key advantages:

  • location – the house is situated on a quiet street, just 100 meters as the crow flies from the Żerański Canal and 5 km from the Zegrze Reservoir, in the immediate vicinity of a forest, bike and walking paths, as well as extensive educational, recreational, commercial, and service infrastructure, and just 5 km from the Warsaw city limits
  • impressive living area – 84 square meters of open space comprising the living room, dining room, and kitchen create an impressive space for entertaining guests as well as hosting larger family gatherings
  • ground floor with windows—a fully functional, large space with many layout possibilities, e.g., a recreation area, home theater, room for a senior, or storage space, which is always in short supply. This home offers the opportunity to comfortably combine private life with running a business
  • a versatile space that adapts to your needs—including a large room right by the entrance, separate from the private living area—perfect for an office, beauty salon, or private practice, a massive garage where you can finally park your large vehicles without any trouble, an impressive covered terrace that you can easily transform into a one-of-a-kind winter garden to enjoy all year round
  • the possibility of fully customizing the finishes according to your own vision and needs

Lot

The house is situated on a 1,212-square-meter corner lot, on a quiet cobblestone street. From the street, there is a light and minimalist panel fence on a foundation, along with a brick-built, covered trash shelter. The lot features several stately trees, including the aforementioned magnificent oak, which are a unique asset, giving it a distinctive, mature character and creating a natural, green frame for the house, emphasizing its prestige and harmoniously integrating it into the surroundings. The plot’s size also offers many possibilities for its use; here is space to create the garden of your dreams, with areas for relaxation, play for children, and perhaps even a pool or hot tub. Additionally, there is the possibility of constructing a building with an area of 100 sq. m. on the plot.
Infrastructure 

  • Fala Water Park – approx. 200 m
  • Elementary school and high school – approx. 250 m
  • Biedronka store – approx. 350 m
  • Jan Kazimierz Shopping Park (including Rossmann, Empik, Pepco, Netto, Sinsay, Martes Sport, pharmacy, Grzybki bakery) – approx. 500 m

Architecture and Standard 

  • Modern aesthetics blend harmoniously with classic elegance here, creating a cohesive and stylistically distinctive whole
  • The building is constructed using traditional brick masonry technology with hollow bricks (thick, three-layer walls additionally insulated from the outside).
  • Underfloor heating throughout the house; includes a gas furnace and water tank
  • Gas, electricity, and sewer—all utilities connected
  • Fiber-optic internet coming soon
  • Video intercom, alarm system
  • The building has a basement
  • Paving stones on the property

Clean title, purchase financing available. We provide comprehensive and free support throughout the financing process.

Come and experience the unique atmosphere of this place...

Location

All locations on the map are approximate.

Floor plan

Don't hesitate to contact us

Katarzyna Kiljańska

Ekspert ds. Nieruchomości

Call:

Zainteresowała Cię nasza oferta lub szukasz podobnej nieruchomości? Zapraszamy do kontaktu!



Near offers

Exclusivity
0%
4 rooms, 2026 year, plot area 790 m2
Stanisławów Pierwszy , ul. Izabelińska
1 199 900 zł

8 758 zł/sqm

137 sqm

4 rooms

Exclusivity
0%
7 rooms, 2026 year, plot area 7 044 m2
Stanisławów Pierwszy , ul. Izabelińska
4 800 000 zł

11 947 zł/sqm

402 sqm

7 rooms

Exclusivity
0%
6 rooms, 2026 year, plot area 500 m2
Nieporęt , ul. Gerwazego
1 290 000 zł

6 826 zł/sqm

189 sqm

6 rooms

Exclusivity
0%
6 rooms, 2026 year, plot area 500 m2
Nieporęt , ul. Gerwazego
1 290 000 zł

6 826 zł/sqm

189 sqm

6 rooms

Exclusivity
0%
6 rooms, 2024 year, plot area 500 m2
Warszawa, Białołęka , Słoneczna
1 599 000 zł

6 630 zł/sqm

241 sqm

6 rooms

1/28
Wizualizacja
Wizualizacja
Wizualizacja
Wizualizacja
Wizualizacja
Wizualizacja
Wizualizacja