mazowieckie, wołomiński, Kobyłka, Kraszewska

679 000 zł

6 109 zł/m2

EXCLUSIVE 0% COMMISSION

Apartment for sell - 111.15 sqm, 5 rooms

Area:
111.15 sqm
Number of rooms:
5 rooms
Floor:
1 / 2
Rent:
b.d.
Type of apartment:
Apartment
Finishing condition:
Development state
Heating:
Gas
Market:
primary
Available from:
b.d.
Additional areas:
  • classic balcony
  • garden 30.00 sqm
Amenities:
  • air conditioning
Parking:
  • ground-based 2x 0 zł
Offer number:
64240/MS/MAX

Rooms

Height:
b.d.
Salon area:
23.70 sqm
Type of kitchen:
Adjoining
Number of bathrooms:
2
Number of toilets:
2
Wardrobe:
Tak

Building

Type of building:
Apartment building
Year of construction:
2026
Condition of the building:
Shell
Construction material:
Air Brick
Safety:
  • intercom
  • monitoring
  • security
  • fenced area
Amenities:

Description

NEW DEVELOPMENT - PRE-SALE - Purchase directly from the developer / fixed-price guarantee / Two-level apartment, 111.15 sq. m., with a 30 sq. m. garden /  Rent-free two-level apartments / excellent location / two parking spaces in front of the building included in the price /

Investment apartment – can be converted into two separate units – separate staircase. 

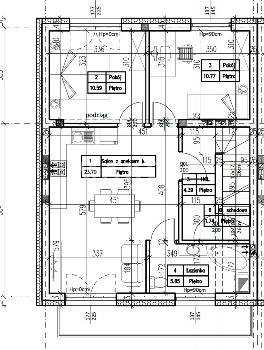
The apartment is located on the first and second floors; the total area is 111.15 sq. m. The first floor features 3 rooms, a bathroom, and a balcony; the second floor has an open-plan layout—two rooms and a bathroom can be created. The staircase does not interfere with either floor; the space can be divided into two separate apartments. 

The total area is 111.15 sq m, and it includes a 30 sq m garden.  

Floor plan:

Ground floor – entrance / vestibule with stairs (4.71 m²)

First floor (58.58 m²)

  • Living room with dining area and open kitchen (23.70 m²)
  • Bedroom (10.79 m²)
  • Room (10.59 m²)
  • Bathroom (5.85 m)
  • Hallway (4.39 m)
  • Staircase (1.74 m)
  • Balcony (6.80 m)
  • Garden (30 m²)

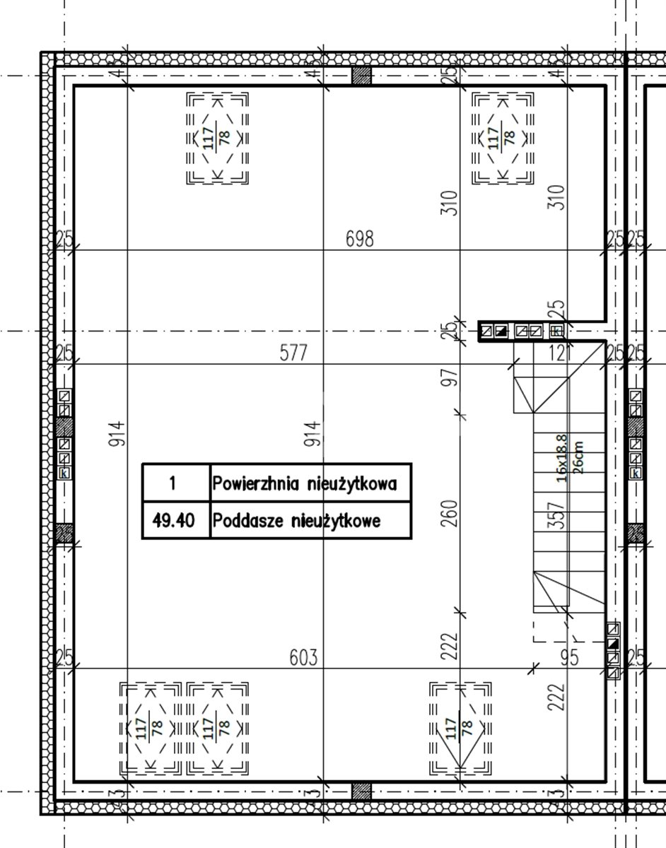
Second Floor (49.40 m²)

Attic - open space / very high ceiling / can be divided into 2 rooms, a kitchen, and a bathroom / Stairs leading up without interfering with the first floor / this space features underfloor heating, additional PUR foam insulation, and one skylight included in the price / 

Included in the price:

  • own dual-function gas furnace
  • two numbered parking spaces within the complex
  • underfloor heating throughout the house (first and second floors)
  • private garden assigned to the unit / fenced gardens
  • gated, fenced-in community
  • paved area
  • remote-controlled entrance gate to the housing complex
  • intercom system - wiring
  • connections for alarm, antenna, TV, and internet
  • beautifully landscaped estate infrastructure
  • On the second floor: underfloor heating and a roof deck insulated with PUR foam

Utilities: electricity, power (induction), municipal water supply, sewage system – septic tank, gas

A bit about the development...

A modern, designer, intimate housing complex of rent-free two-unit apartments. They stand out for their modern design and quality of construction. 

This is an atmospheric, gated community of rent-free apartments. The project was designed by a leading architectural firm. 

What sets them apart:

  • The apartments have separate entrances / their own stairwell
  • can accommodate two families
  • two parking spaces included in the price
  • Excellent location 
  • a secluded setting

Neighborhood: intimate development, excellent quality and craftsmanship.

Location:

Thanks to its unique location, it offers a refuge from the hustle and bustle of the city, while being situated in an area with excellent transport links and full infrastructure.

  • School 1,400 m
  • Kindergarten 1,500 m
  • medical clinic 2100m
  • Shops 1,200 m
  • Public transportation 1,400 m
  • Kobyłka Train Station 2300m
  • Quick access to Warsaw via commuter rail or the S8 highway

Purchase directly from the developer. Buyer exempt from the 2% PCC tax. Purchase via a secure escrow account.

Completion of construction: Q2/Q3 2027. 

Feel free to call 7 days a week, 9 AM–9 PM

 

Location

All locations on the map are approximate.

Floor plan

Don't hesitate to contact us

Beata Palaszek

Ekspert ds. Nieruchomości

Call:

Zainteresowała Cię nasza oferta lub szukasz podobnej nieruchomości? Zapraszamy do kontaktu!



Near offers

Exclusivity
0%
569 000 zł

10 669 zł/sqm

53 sqm

3 rooms

Exclusivity
0%
559 000 zł

10 482 zł/sqm

53 sqm

3 rooms

3 rooms, ground floor, 2025 year
Kobyłka , ul. sierż. Artura Kostrowskiego
539 000 zł

9 727 zł/sqm

55 sqm

3 rooms

3 rooms, ground floor, 2025 year
Kobyłka , ul. sierż. Artura Kostrowskiego
539 000 zł

9 727 zł/sqm

55 sqm

3 rooms

3 rooms, ground floor, 2025 year
Kobyłka , ul. sierż. Artura Kostrowskiego
539 000 zł

9 727 zł/sqm

55 sqm

3 rooms

1/11