mazowieckie, wołomiński, Kobyłka, Kraszewska

569 000 zł

10 669 zł/m2

EXCLUSIVE 0% COMMISSION

Apartment for sell - 53.33 sqm, 3 rooms

Area:
53.33 sqm
Number of rooms:
3 rooms
Floor:
0 / 1
Rent:
b.d.
Type of apartment:
Apartment
Finishing condition:
Development state
Heating:
Gas
Market:
primary
Available from:
b.d.
Additional areas:
  • no
  • terrace 0.00 sqm
  • garden 44.00 sqm
Amenities:
Parking:
  • ground-based 2x 0 zł
Offer number:
64239/MS/MAX

Rooms

Height:
b.d.
Salon area:
20.46 sqm
Type of kitchen:
Adjoining
Number of bathrooms:
1
Number of toilets:
1
Wardrobe:
Tak

Building

Type of building:
Apartment building
Year of construction:
2026
Condition of the building:
Shell
Construction material:
Air Brick
Safety:
  • intercom
  • monitoring
  • security
  • fenced area
Amenities:

Description

NEW DEVELOPMENT - PRE-SALE - Purchase directly from the developer / fixed-price guarantee / No-maintenance fee apartment / excellent location / two parking spaces in front of the building included in the price /

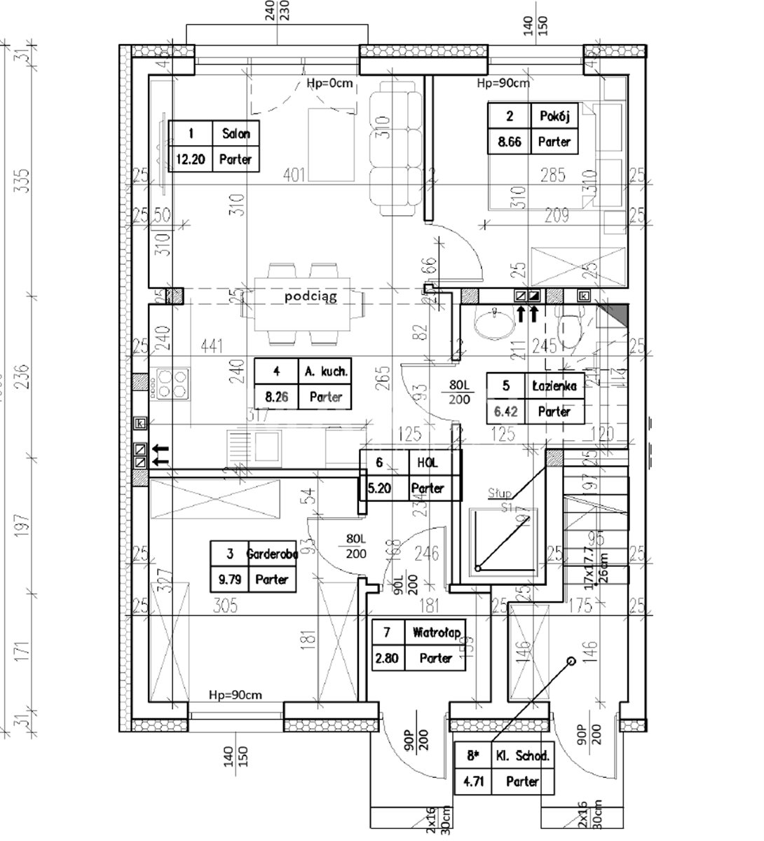
The apartment is located on the ground floor and features 3 rooms with a total area of 53.33 sq m and a garden with an area of 44 sq m.  

Floor plan:

  • Living room with dining area and open kitchen (20.46 sq. m)
  • Bedroom (9.79 m²)
  • Room (8.66 sq. m)
  • Bathroom (6.42 sq. m)
  • Hallway (5.20 m)
  • Entranceway (2.80 m)
  • Garden (44 m²)

The apartment faces both directions, making it perfectly lit.

Included in the price:

  • a private dual-function gas furnace
  • two numbered parking spaces within the complex
  • underfloor heating throughout the home
  • private garden assigned to the unit / fenced gardens
  • gated community
  • paved area
  • remote-controlled entrance gate to the housing complex
  • intercom system - wiring 
  • connections for alarm, antenna, TV, and internet
  • beautifully landscaped estate infrastructure

Utilities: electricity, power (induction), municipal water supply, sewage system – septic tank, gas

A bit about the development...

A modern, designer, intimate housing complex of rent-free two-unit apartments. They stand out for their modern design and high-quality construction. 

This is an atmospheric, gated community of rent-free apartments.The project was designed by a leading architectural firm. 

What sets them apart:

  • rent-free apartments with gardens and direct access from the living room 
  • two parking spaces included in the price
  • excellent location and infrastructure
  • a secluded setting 

Neighborhood: intimate development, excellent quality and craftsmanship.

Location:

Thanks to its unique location, it offers a refuge from the hustle and bustle of the city, while being situated in an area with excellent transport links and full infrastructure.

  • School 1,400 m
  • Kindergarten 1,500 m
  • medical clinic 2100m
  • Shops 1,200 m
  • Public transportation 1,400 m
  • Kobyłka Train Station 2300m
  • Quick access to Warsaw via commuter rail or the S8 highway

Purchase directly from the developer. Buyer exempt from the 2% PCC tax. Purchase via a secure escrow account.

Completion of construction: Q2/Q3 2027. 

Feel free to call 7 days a week, 9 AM–9 PM


Building

A few words about the development...

A modern, designer, intimate community of rent-free two-room apartments. They stand out for their modern design and high-quality construction. 

This is an atmospheric, gated community of rent-free apartments. The project was designed by a leading architectural firm. 

What sets them apart:

  • rent-free apartments with gardens featuring direct access from the living room 
  • two parking spaces included in the price
  • excellent location and infrastructure
  • a secluded setting 

Neighborhood: intimate development, excellent quality and craftsmanship.

Location

Location:

Thanks to its unique location, it offers a refuge from the hustle and bustle of the city, while being situated in an area with excellent transport links and full infrastructure.

  • School 1,400 m
  • Kindergarten 1,500 m
  • medical clinic 2100m
  • Shops 1,200 m
  • Public transportation 1,400 m
  • Kobyłka Train Station 2300m
  • Quick access to Warsaw via commuter rail or the S8 highway

Purchase directly from the developer. Buyer exempt from the 2% PCC tax. Purchase via a secure escrow account. Construction completion
: Q2/Q3 2027. 

Feel free to call 7 days a week, 9 AM–9 PM

All locations on the map are approximate.

Floor plan

Don't hesitate to contact us

Beata Palaszek

Ekspert ds. Nieruchomości

Call:

Zainteresowała Cię nasza oferta lub szukasz podobnej nieruchomości? Zapraszamy do kontaktu!



Near offers

Exclusivity
0%
5 rooms, 1 floor, 2026 year
Kobyłka , Kraszewska
679 000 zł

6 109 zł/sqm

111 sqm

5 rooms

Exclusivity
0%
559 000 zł

10 482 zł/sqm

53 sqm

3 rooms

3 rooms, ground floor, 2025 year
Kobyłka , ul. sierż. Artura Kostrowskiego
539 000 zł

9 727 zł/sqm

55 sqm

3 rooms

3 rooms, ground floor, 2025 year
Kobyłka , ul. sierż. Artura Kostrowskiego
539 000 zł

9 727 zł/sqm

55 sqm

3 rooms

3 rooms, ground floor, 2025 year
Kobyłka , ul. sierż. Artura Kostrowskiego
539 000 zł

9 727 zł/sqm

55 sqm

3 rooms

1/12