Warszawa, Włochy, al. Aleja Krakowska
730 164 zł
14 300 zł/m2
Apartment for sell - 51.06 sqm, 2 rooms
Area:
51.06 sqm
Number of rooms:
2 rooms
Floor:
0 / 6
Rent:
b.d.
Type of apartment:
Apartment
Finishing condition:
Development state
Heating:
Urban central heating
Market:
primary
Available from:
b.d.
Additional areas:
- cell
Amenities:
- elevator
Parking:
- underground 1x 50 000 zł
Offer number:
63615/MS/MAX
Rooms
Height:
b.d.
Salon area:
29.39 sqm
Type of kitchen:
Adjoining
Number of bathrooms:
1
Number of toilets:
0
Wardrobe:
Nie
Building
Type of building:
Apartment building
Year of construction:
2025
Condition of the building:
Shell
Construction material:
Ceramics
Safety:
- intercom
- monitoring
Amenities:
- playground
Description
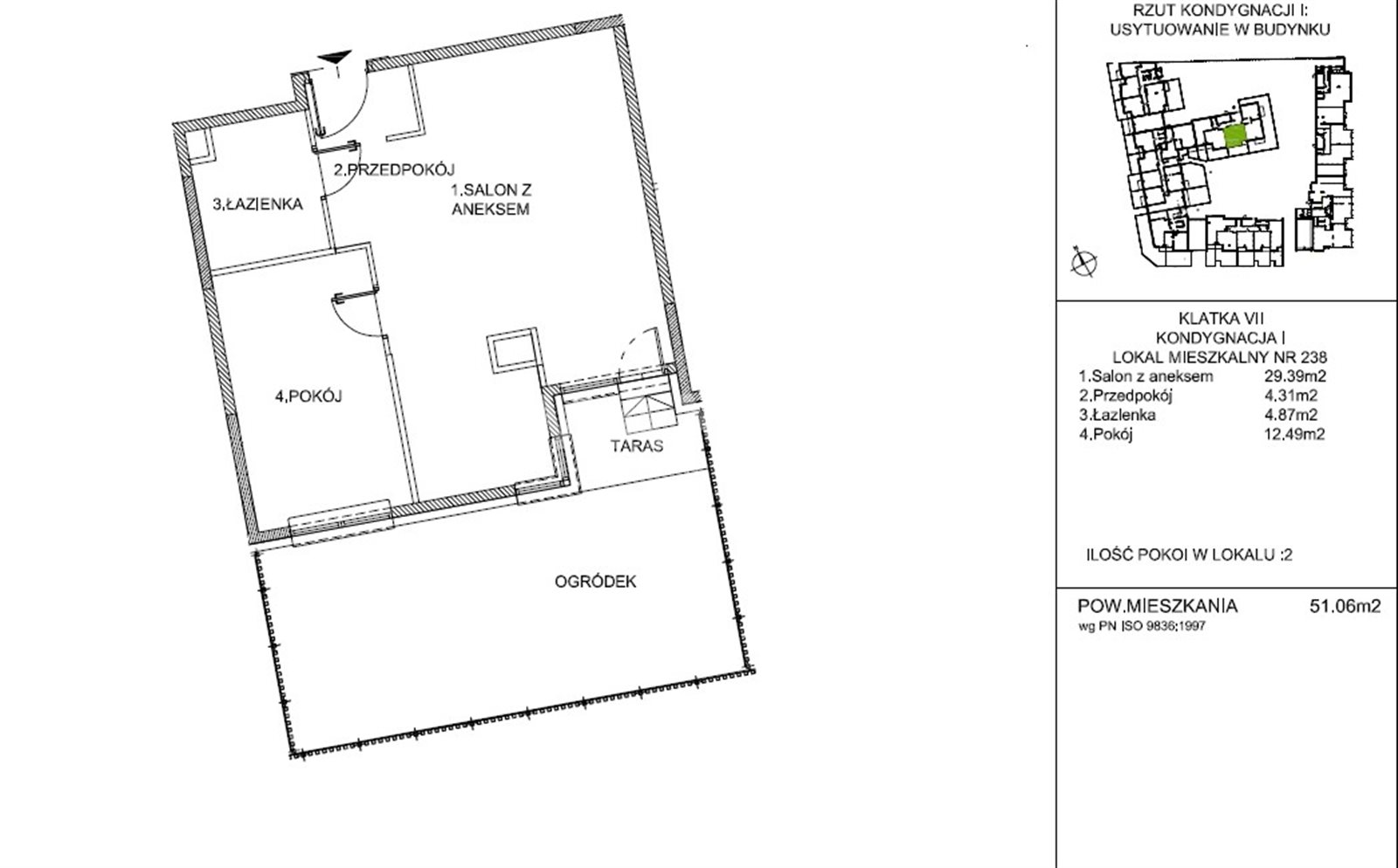
For sale: a functional 51.06 m² apartment with a private garden and terrace—perfect for those who want to combine the comfort of home with outdoor space.
Layout:
living room with kitchenette – 29.39 m²
bedroom / room – 12.49 m²
bathroom – 4.87 m²
entryway – 4.31 m²
Key features:
access to the terrace and garden
ground floor – everyday convenience
spacious living room
versatile bedroom
ideal for a couple, family, or as an investment
A bright, functional apartment with great potential for interior design.
Layout:
living room with kitchenette – 29.39 m²
bedroom / room – 12.49 m²
bathroom – 4.87 m²
entryway – 4.31 m²
Key features:
access to the terrace and garden
ground floor – everyday convenience
spacious living room
versatile bedroom
ideal for a couple, family, or as an investment
A bright, functional apartment with great potential for interior design.
Building
- Security monitoring and video intercom
- Modern common areas finished with attention to detail
- Ready for occupancy—you can move in immediately after finishing work
Location
Premium location – the key to high returns:
- Transportation: tram and bus stops right outside the building, Rakowiec train station – 400 m, quick access to downtown, A2 highway – 5 min,
- Chopin Airport – 7 min
- Education and business: Medical University of Warsaw – 20 min, Warsaw University of Technology – 25 min, DGRSZ – 10 min
- Amenities: shops, fitness centers, restaurants, kindergartens, and schools within a 400–500 m radius
- Recreation: Kotański Park 5 min, Korotyński Forts, Malicki Park, Szczęśliwicki Park
All locations on the map are approximate.
Don't hesitate to contact us
Zainteresowała Cię nasza oferta lub szukasz podobnej nieruchomości? Zapraszamy do kontaktu!
4 rooms, 3 floor, 1999 year
Warszawa, Ochota , Włodarzewska
1 850 000 zł
16 434 zł/sqm
113 sqm
4 rooms
0%
3 rooms, 3 floor, 2025 year
Warszawa, Włochy , ul. Fajansowa
1 054 000 zł
18 198 zł/sqm
58 sqm
3 rooms
Exclusivity
4 rooms, 3 floor, 2024 year
Warszawa, Ochota , ul. Włodarzewska
3 100 000 zł
24 211 zł/sqm
128 sqm
4 rooms
0%
3 rooms, 3 floor, 1976 year
Warszawa, Ochota , ul. Władysława Korotyńskiego
989 000 zł
15 145 zł/sqm
65 sqm
3 rooms
0%
3 rooms, 3 floor, 1970 year
Warszawa, Ochota , Stefana Baleya
874 900 zł
13 419 zł/sqm
65 sqm
3 rooms