Corner Apartment with Garden Quiet Neighborhood

Warszawa, Wesoła, ul. Armii Krajowej

2 099 000 zł

12 917 zł/m2

EXCLUSIVE 0% COMMISSION

Apartment for sell - 162.50 sqm, 5 rooms

Area:
162.50 sqm
Number of rooms:
5 rooms
Floor:
0 / 2
Rent:
b.d.
Type of apartment:
Multilevel
Finishing condition:
Very good
Heating:
Gas
Market:
secondary
Available from:
b.d.
Additional areas:
  • terrace
  • garden 235.00 sqm
  • cell
Amenities:
Parking:
  • ground-based 1x 0 zł
  • underground 2x 0 zł
Offer number:
63901/MS/MAX

Rooms

Height:
b.d.
Salon area:
29.90 sqm
Type of kitchen:
Adjoining
Number of bathrooms:
2
Number of toilets:
1
Wardrobe:
Tak

Building

Type of building:
House
Year of construction:
2018
Condition of the building:
Very good
Construction material:
Brick
Safety:
  • intercom
  • fenced area
Amenities:

Description

Do you dream of a home that combines comfort with privacy and green space around it? This corner apartment in the intimate Ogrody Wesoła housing estate is the perfect choice for those who value peace, functionality, and modern solutions.

The property was built in 2018 and offers 162.5 sq m of functional living space and 235 sq m of well-maintained land.

The segment includes:

  • private garden,
  • roof terrace (approx. 7 sq m),
  • an outdoor parking space,
  • two spaces in the underground garage,
  • a storage room.

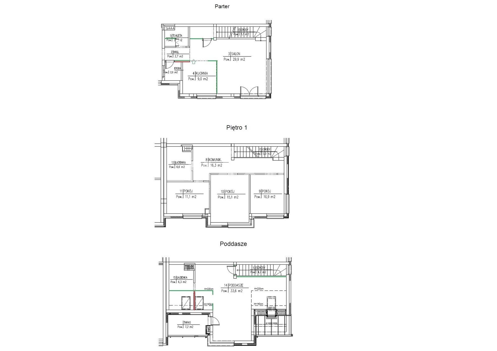
Room layout:

Level -1: underground garage and storage room
Ground floor: living room connected to the kitchen, toilet with gas stove, wardrobe, entrance to the garage with a practical storage room
First floor: three rooms, bathroom and hallway
Attic: additional large room, bathroom and storage room

Building

The Ogrody Wesoła housing estate is a modern, secure development equipped with:

  • heated driveway to the garage,
  • entrance gate opened by phone,
  • rainwater tank system (for watering gardens),
  • lighting and monitoring,
  • cameras,
  • fiber optic cable,
  • fenced, controlled area,
  • very friendly neighborhood community.

Technical parameters of the building:

  • number of floors: 3+
  • material: brick
  • windows: wooden
  • roof: sloping, sheet metal covering
  • usable attic
  • installations: gas
  • energy certificate: B
  • security: monitoring/security, intercom/video intercom, closed area

Location

The segment is located in the Wesoła district, which combines proximity to nature with urban convenience. The estate is surrounded by a forest, which can be accessed directly from the investment site — an ideal place for walking, running, or recreation with children.

The immediate vicinity includes:

  • numerous schools and kindergartens (both public and private),
  • shops: Żabka, and a little further away Lidl and Biedronka,
  • full infrastructure of the center of Sulejówek (approx. 1.5 km),
  • restaurants, cafes, a clinic, and a cultural center.

Transport:

  • bus stop right outside the gate of the estate – 2 lines, including direct access to the center of Warsaw,
  • PKP Wola Grzybowska railway station – 1.1 km and PKP Warszawa Wesoła 1.2 km
All locations on the map are approximate.

Floor plan

Don't hesitate to contact us

Michał Gadziała

Starszy Specjalista ds. Nieruchomości

Call:

Zainteresowała Cię nasza oferta lub szukasz podobnej nieruchomości? Zapraszamy do kontaktu!



Near offers

0%
909 000 zł

10 311 zł/sqm

88 sqm

4 rooms

Exclusivity
3 rooms, ground floor, 2021 year
Warszawa, Wesoła , Fabryczna
940 000 zł

11 598 zł/sqm

81 sqm

3 rooms

0%
3-room apartment in a two-unit house
Warszawa, Wesoła , ul. Źródlana
909 000 zł

11 499 zł/sqm

79 sqm

3 rooms

Exclusivity
0%
5 rooms, ground floor, 2025 year
Warszawa, Wawer , ul. Zagórzańska
1 251 480 zł

13 568 zł/sqm

92 sqm

5 rooms

Exclusivity
3 rooms, 1 floor, 1938 year
Warszawa, Rembertów , ul. Markietanki
1 150 000 zł

15 520 zł/sqm

74 sqm

3 rooms

1/25