Warszawa, Praga-Południe, Stefana Okrzei

790 000 zł

23 639 zł/m2

EXCLUSIVE

Apartment for sell - 33.42 sqm, 1 room

Area:
33.42 sqm
Number of rooms:
1 room
Floor:
3 / 8
Rent:
b.d.
Type of apartment:
Mieszkanie
Finishing condition:
Development state
Heating:
Urban central heating
Market:
secondary
Available from:
b.d.
Additional areas:
  • classic balcony
Amenities:
  • elevator
Offer number:
64271/MS/MAX

Rooms

Height:
b.d.
Salon area:
28.74 sqm
Type of kitchen:
Other
Number of bathrooms:
1
Number of toilets:
0
Wardrobe:
Nie

Building

Type of building:
Apartment building
Year of construction:
2024
Condition of the building:
Very good
Construction material:
Concrete
Safety:
  • intercom
  • monitoring
  • security
  • reception
Amenities:

Description

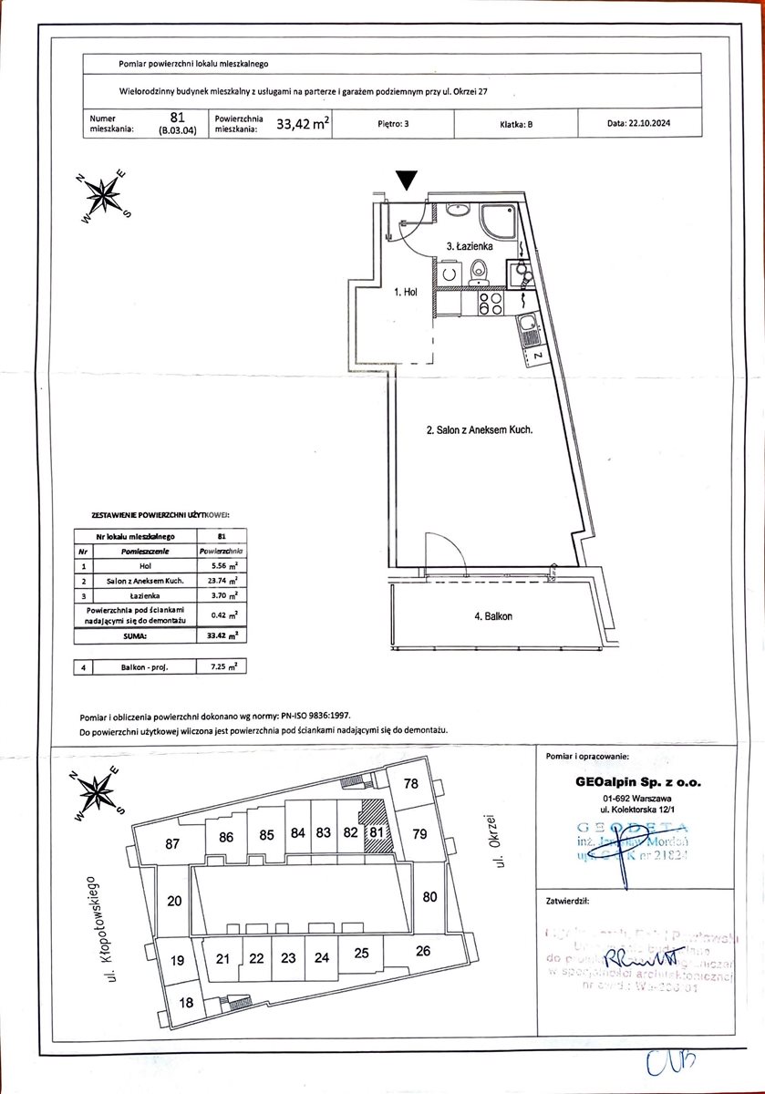
For sale: a studio apartment with an area of 33.42 sq. m., featuring a balcony (7.25 sq. m.), located on the 3rd floor of a modern building in the “Na Okrzei” development, built by Matexi Polska. The apartment has been inspected and approved and is currently in a developer’s finish—ready for your own interior design.

Layout:

  • living room with kitchenette – 23.74 sq. m.,
  • hall – 5.56 sq. m.,
  • bathroom – 3.70 sq. ft.,
  • balcony – 7.25 sq. ft.

The simple, flexible layout offers plenty of possibilities for furnishing—whether for personal use or for rental.

Building:
The development is an 8-story apartment building featuring modern, understated architecture. The complex fits well with the character of Old Prague, which has been undergoing significant changes in recent years and is gaining popularity.

Location:
The apartment is located in the immediate vicinity of Port Praski. This is one of the city’s fastest-growing areas, with an increasingly better infrastructure and atmosphere.

Nearby:

  • Subway: National Stadium Station and Vilnius Station (approx. 600 m),
  • trams and buses,
  • Galeria Wileńska,
  • Praha Cinema,
  • shops (bakery in the building, Lidl approx. 200 m), restaurants and cafes.

Within walking distance:
Vistula Boulevards and the Vistula Riverfront, Warsaw’s Old Town, the University of Warsaw, and Kozminski University.


Another major advantage is the Magdalena Abakanowicz Pedestrian and Bicycle Bridge, which connects Praga with Powiśle—allowing you to quickly and conveniently reach the other side of the Vistula River on foot or by bike.


Additionally, Stefana Okrzei Street is undergoing modernization, which is already improving the appearance and functionality of the area and, in the long term, will increase property values. Okrzei Street will be transformed into a green pedestrian zone prioritizing pedestrians and cyclists. It will feature a stone pavement, rows of trees (74 new ones), wide sidewalks, outdoor dining areas, and a two-way bike path.


This apartment is ideal as a first home for a single person or a student, but also as a rental investment—for both long-term and short-term leases.

Feel free to contact me.

Location

All locations on the map are approximate.

Floor plan

Don't hesitate to contact us

Gabriela Oraczewska

Specjalista ds. Nieruchomości

Call:

Zainteresowała Cię nasza oferta lub szukasz podobnej nieruchomości? Zapraszamy do kontaktu!



Near offers

9 rooms, 1 floor, 1897 year
Warszawa, Praga-Północ , Kępna
3 200 000 zł

13 913 zł/sqm

230 sqm

9 rooms

Exclusivity
0%
LOFT in a historic building in Praga - METRO
Warszawa, Praga-Północ , ul. Targowa
1 990 000 zł

17 653 zł/sqm

113 sqm

4 rooms

Exclusivity
46,34 sqm | View
Warszawa, Praga-Północ , Warszawa
989 000 zł

21 342 zł/sqm

46 sqm

2 rooms

Exclusivity
Excelent for short term lease
Warszawa, Śródmieście , Dobra
739 900 zł

23 868 zł/sqm

31 sqm

2 rooms

Exclusivity
4 rooms, 7 floor, 1984 year
Warszawa, Praga-Północ , ul. Białostocka
1 200 000 zł

16 438 zł/sqm

73 sqm

4 rooms

1/17
Wizualizacja
Wizualizacja
Wizualizacja