Warszawa, Białołęka, Żerań, ul. Wiśniowy Sad
709 000 zł
13 910 zł/m2
EXCLUSIVE
Apartment for sell - 50.97 sqm, 2 rooms
Area:
50.97 sqm
Number of rooms:
2 rooms
Floor:
2 / 2
Rent:
780.00 zł
Type of apartment:
Mieszkanie
Finishing condition:
Very good
Heating:
Gas
Market:
secondary
Available from:
02-01-2026
Additional areas:
- classic balcony
Amenities:
Parking:
- ground-based 1x 25 000 zł
Offer number:
63690/MS/MAX
Rooms
Height:
260 cm
Salon area:
18.00 sqm
Type of kitchen:
Separate
Number of bathrooms:
1
Number of toilets:
0
Wardrobe:
Nie
Building
Type of building:
Apartment building
Year of construction:
2010
Condition of the building:
Very good
Construction material:
Mixed
Safety:
- intercom
- monitoring
- security
- fenced area
- burglar-proof doors/windows
Amenities:
- playground
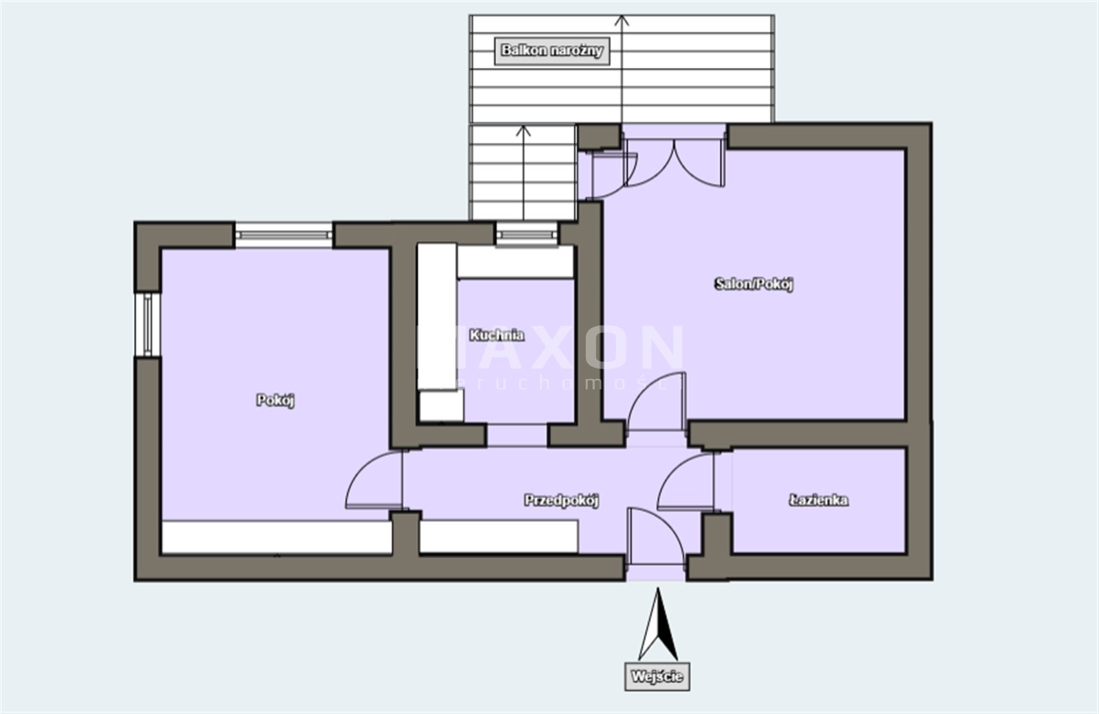
Description
For sale functional 2 bedroom apartment with separate kitchen, spacious corner balcony and above-ground parking space on the estate, in a quiet part of Bialoleka, close to elementary school, green areas and metro Bródno. The apartment is located in the middle of the intimate Cherry Orchard Estate.
Parameters of the apartment:
Space: 50.97 sq.m.
Balcony: 8 sq.m. (southwest exposure)
Floor: 2 of 2 without elevator (2010 building, only 10 apartments in the apartment building)
Ground parking space - extra paid 25 000 PLN
room layout:
Lounge - 18 sqm.
Bedroom - 14 sq.m.
Kitchen - 9 sq.m.
Bathroom - 4.80 sq.m.
Corridor - 4.40 sq.m.
Attributes:
A fully finished apartment - ready to move in
Dimensional kitchen with full build-out
A bright, warm and sunny apartment - exposure to three sides
Large balcony with relaxation area
A cozy building with bike and trolley room available to all residents
Neutral color scheme of the apartment: white/gray/wood and wood elements
In the area of the estate two playgrounds, kindergarten, groomer
Location:
A quiet part of Bialoleka - low-rise buildings, lots of greenery and at the same time close to the subway Bródno, Targówek, Trasa Toruńska
In the vicinity: elementary school, kindergartens, nurseries, stores, gallery, swimming pool, pharmacy, fitness, Żerański canal
Very good connection with the center - buses by the estate, streetcars 5 minutes walk to Annopol stop, Bródno metro 7 minutes by bus or 15 minutes walk
Additional information:
Full ownership - land register.
Apartment ideal for a couple and a family with children.
Price of the apartment: PLN 709,000 + PLN 25,000 for a ground parking space
Call for a presentation.
Parameters of the apartment:
Space: 50.97 sq.m.
Balcony: 8 sq.m. (southwest exposure)
Floor: 2 of 2 without elevator (2010 building, only 10 apartments in the apartment building)
Ground parking space - extra paid 25 000 PLN
room layout:
Lounge - 18 sqm.
Bedroom - 14 sq.m.
Kitchen - 9 sq.m.
Bathroom - 4.80 sq.m.
Corridor - 4.40 sq.m.
Attributes:
A fully finished apartment - ready to move in
Dimensional kitchen with full build-out
A bright, warm and sunny apartment - exposure to three sides
Large balcony with relaxation area
A cozy building with bike and trolley room available to all residents
Neutral color scheme of the apartment: white/gray/wood and wood elements
In the area of the estate two playgrounds, kindergarten, groomer
Location:
A quiet part of Bialoleka - low-rise buildings, lots of greenery and at the same time close to the subway Bródno, Targówek, Trasa Toruńska
In the vicinity: elementary school, kindergartens, nurseries, stores, gallery, swimming pool, pharmacy, fitness, Żerański canal
Very good connection with the center - buses by the estate, streetcars 5 minutes walk to Annopol stop, Bródno metro 7 minutes by bus or 15 minutes walk
Additional information:
Full ownership - land register.
Apartment ideal for a couple and a family with children.
Price of the apartment: PLN 709,000 + PLN 25,000 for a ground parking space
Call for a presentation.
Location
All locations on the map are approximate.
Don't hesitate to contact us
Zainteresowała Cię nasza oferta lub szukasz podobnej nieruchomości? Zapraszamy do kontaktu!
Exclusivity
4 rooms, 2 floor, 2010 year
Warszawa, Białołęka , ul. Wiśniowy Sad
1 040 000 zł
14 096 zł/sqm
74 sqm
4 rooms
Exclusivity
3 rooms, ground floor, 2015 year
Warszawa, Białołęka , Białołęcka
919 000 zł
16 709 zł/sqm
55 sqm
3 rooms
Exclusivity
3 rooms, 2 floor, 2015 year
Warszawa, Białołęka , ul. Płochocińska
729 550 zł
11 999 zł/sqm
61 sqm
3 rooms
0%
Modern apartment close to the metro – Rzepichy 3
Warszawa, Targówek , Rzepichy
1 339 758 zł
13 261 zł/sqm
101 sqm
1 room
2 rooms | Żerań | garage | garden
Warszawa, Białołęka , ul. Krzyżówki
735 000 zł
14 674 zł/sqm
50 sqm
2 rooms