Warszawa, Mokotów, al. Aleja Wyścigowa
8 450 eur
13 eur/m2
0% COMMISSION
Office surface for rent
Basic
Area
650.00 m2
Floor
8
Offer number
25919/PBW/MAX
Terms of Business
Service charge m2
29.98
Rent m2
13.00 EUR
Min. okres najmu (lata)
3
Ground parking rent
55 EUR
Underground parking
85 EUR
Standard
Air-conditioning
Yes
Serviced office
No
Forced ventilation
Yes
Opening Windows
Yes
Suspended ceilings
Yes
Raised floors
Yes
Optical fiber
Yes
Okablowanie komputer.
Yes
Electrical wiring
Yes
Telephone wiring
Yes
Security
Reception
Yes
Monitoring
Yes
Smoke detectors
Yes
Access control
Yes
Sprinklers
Yes
Alarm
Yes
The protection of the
Yes
Information about the building
Year of construction
2009
Pow. biurowa netto
14 000 m2
Pow. typowego piętra
1 574 m2
Common community area (%)
3.51 %
Above - ground floors
10
Underground floors
2
Elevator
Yes
Available in the building
canteen
Współ. miejsc parking.
60.00
Building
Type of building
Office building
Description
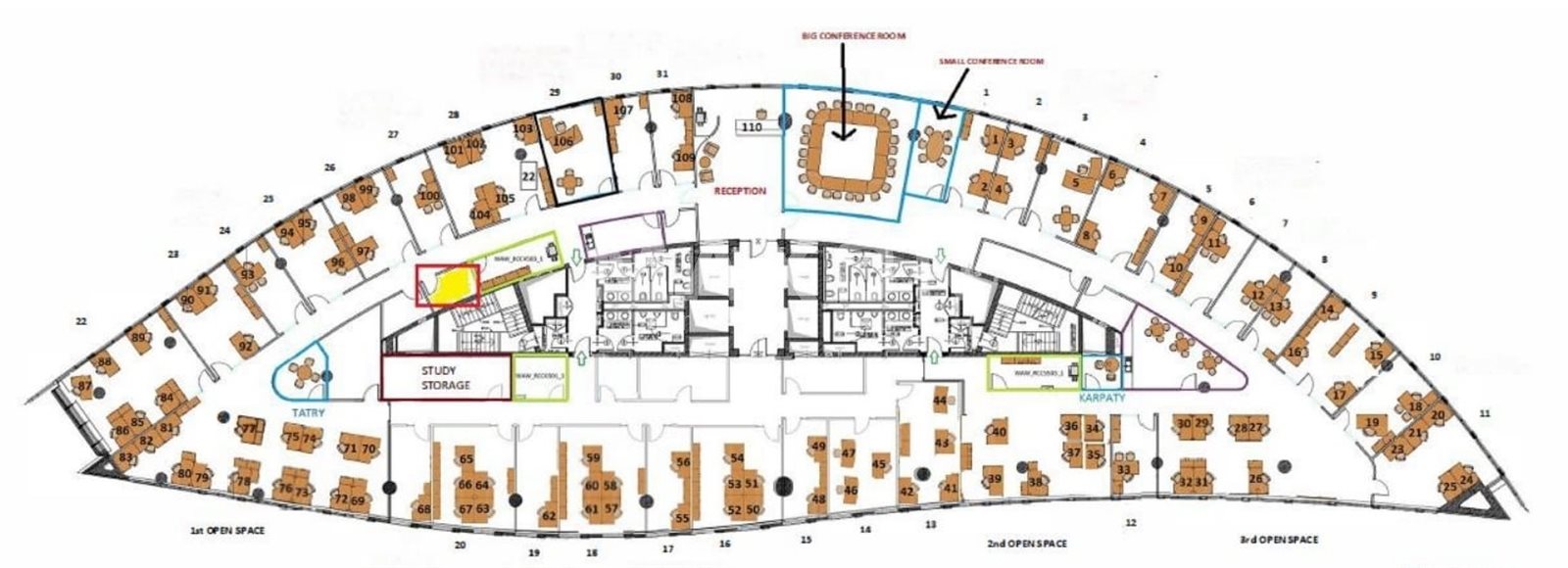
650 sq ft of office space – a prestigious office in a modern building near the Horse Racing Track.
A modular space with functional layout – an open-plan area that can be divided into private offices – flexible configuration tailored to the tenant’s needs.
Dedicated server room
Air conditioning and mechanical
ventilation Standard restrooms and
kitchen facilities Parking spaces for employees and clients
Natural lighting, large windows, and the ability to customize the space.
Modern technical infrastructure ready to support even the most demanding businesses. This
is the ideal location for companies seeking modern office space with good access to public transportation and proximity to the city center.
I invite you to a tour of the office.
A modular space with functional layout – an open-plan area that can be divided into private offices – flexible configuration tailored to the tenant’s needs.
Dedicated server room
Air conditioning and mechanical
ventilation Standard restrooms and
kitchen facilities Parking spaces for employees and clients
Natural lighting, large windows, and the ability to customize the space.
Modern technical infrastructure ready to support even the most demanding businesses. This
is the ideal location for companies seeking modern office space with good access to public transportation and proximity to the city center.
I invite you to a tour of the office.
Location
The property is located at the intersection of two key thoroughfares in Mokotów—Puławska and Rzymowskiego Streets—just outside the core office district of Służewiec Przemysłowy. It offers quick access by car to downtown Warsaw (15 minutes) and Okęcie Airport (10 minutes). A well-developed public transportation hub provides access to other parts of the city via buses and trams.
All locations on the map are approximate.
Don't hesitate to contact us
Zainteresowała Cię nasza oferta lub szukasz podobnej nieruchomości? Zapraszamy do kontaktu!