Warszawa, Mokotów, Puławska

5 840 eur

16 eur/m2

0% COMMISSION

Commercial surface for rent

Basic

Area
365.00 m2
Floor
1
Offer number
2025/PHW/MAX

Terms of Business

Water
No
Rent m2
16.00 EUR
Service charge m2
27.50
Min. okres najmu (lata)
3
Heating
No
Electricity / power
No
Gas
No

Standard

Air-conditioning
Yes
Forced ventilation
Yes
Opening Windows
Yes
Suspended ceilings
Yes
Raised floors
No
Optical fiber
Yes

Information about the building

Year of construction
1999
Underground parking
270
Elevator
Yes

Building

Type of building
Office building
The State of the building
Existing
Material
Mixed

Security

Reception
Yes
Monitoring
Yes
Smoke detectors
Yes
Access control
Yes
Sprinklers
Yes
Alarm
Yes
The protection of the
Yes

Security building

Intercom
No

Description

The perfect location for your school or training center—a ready-to-use space.

A place that will inspire your students.

A unique space for rent, featuring several entrances, perfectly suited for educational or medical needs.

The space combines modern style with functionality, creating an atmosphere conducive to learning and concentration.

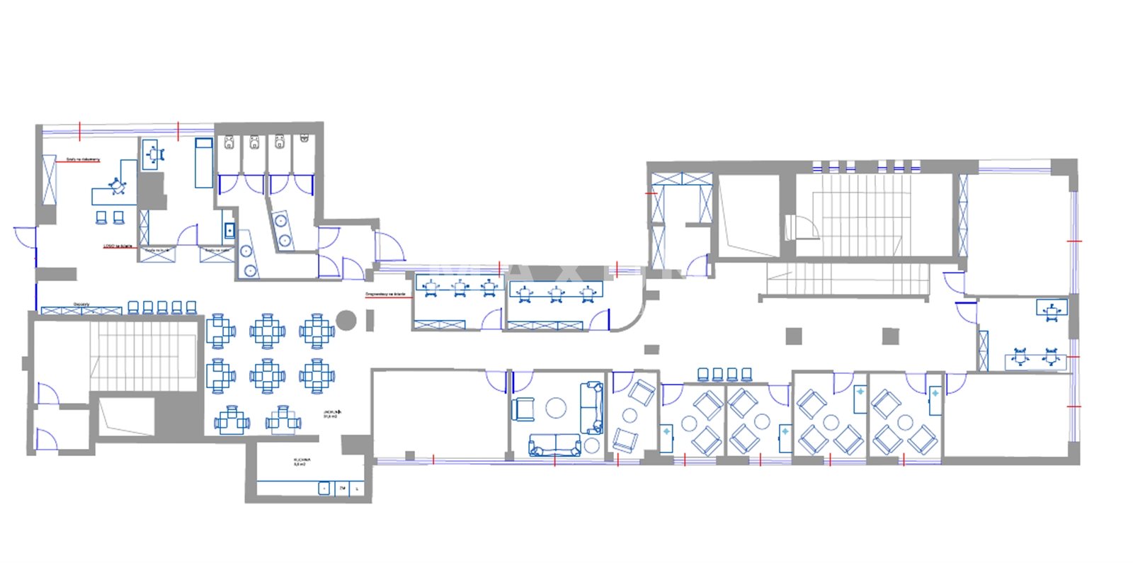
The layout of the premises corresponds to the floor plan attached to the offer:

  • approximately 11 rooms of various sizes ranging from approx. 12 sq. m to 22 sq. m,
  • a kitchenette,
  • a lounge area,
  • server room,
  • reception desk,
  • restroom.

Gross area including the building’s common areas.

Rent including operating costs: 39,400 PLN net + VAT.

I invite you to view the premises.

Available immediately.

Location

All locations on the map are approximate.

Floor plan

Don't hesitate to contact us

Yurii Bukhtii

Specjalista ds. Nieruchomości

Call:

Zainteresowała Cię nasza oferta lub szukasz podobnej nieruchomości? Zapraszamy do kontaktu!



Near offers

0%
Premises at the Unii Lubelskiej square
Warszawa, Mokotów , Puławska
26 145 zł

68 zł/sqm

384 sqm

ground floor, 1930 year
Warszawa, Mokotów , Puławska
10 032 zł

114 zł/sqm

88 sqm

0%
ground floor, 2002 year
Warszawa, Mokotów , ul. Wiśniowa
4 080 zł

68 zł/sqm

60 sqm

ground floor, 1860 year
Warszawa, Śródmieście , ul. Mokotowska
11 070 zł

135 zł/sqm

82 sqm

0%
Retail space after a drink bar Possible restaurant
Warszawa, Śródmieście , ul. Żurawia
41 790 zł

199 zł/sqm

210 sqm

1/8