Warszawa, Białołęka

729 000 zł

11 522 zł/m2

0% COMMISSION

Apartment for sell - 63.27 sqm, 3 rooms

Area:
63.27 sqm
Number of rooms:
3 rooms
Floor:
0 / 4
Rent:
b.d.
Type of apartment:
Apartment
Finishing condition:
Development state
Heating:
Urban central heating
Market:
primary
Available from:
b.d.
Additional areas:
  • french
  • garden 134.24 sqm
  • basement
  • cell
Amenities:
  • elevator
Parking:
  • garage 1x 35 000 zł
  • ground-based 1x 15 000 zł
  • underground 1x 35 000 zł
Offer number:
63064/MS/MAX

Rooms

Height:
b.d.
Salon area:
31.76 sqm
Type of kitchen:
Adjoining
Number of bathrooms:
1
Number of toilets:
1
Wardrobe:
Nie

Building

Type of building:
Apartment building
Year of construction:
2025
Condition of the building:
Shell
Construction material:
Air Brick
Safety:
  • intercom
  • monitoring
  • security
  • fenced area
Amenities:
  • playground

Description

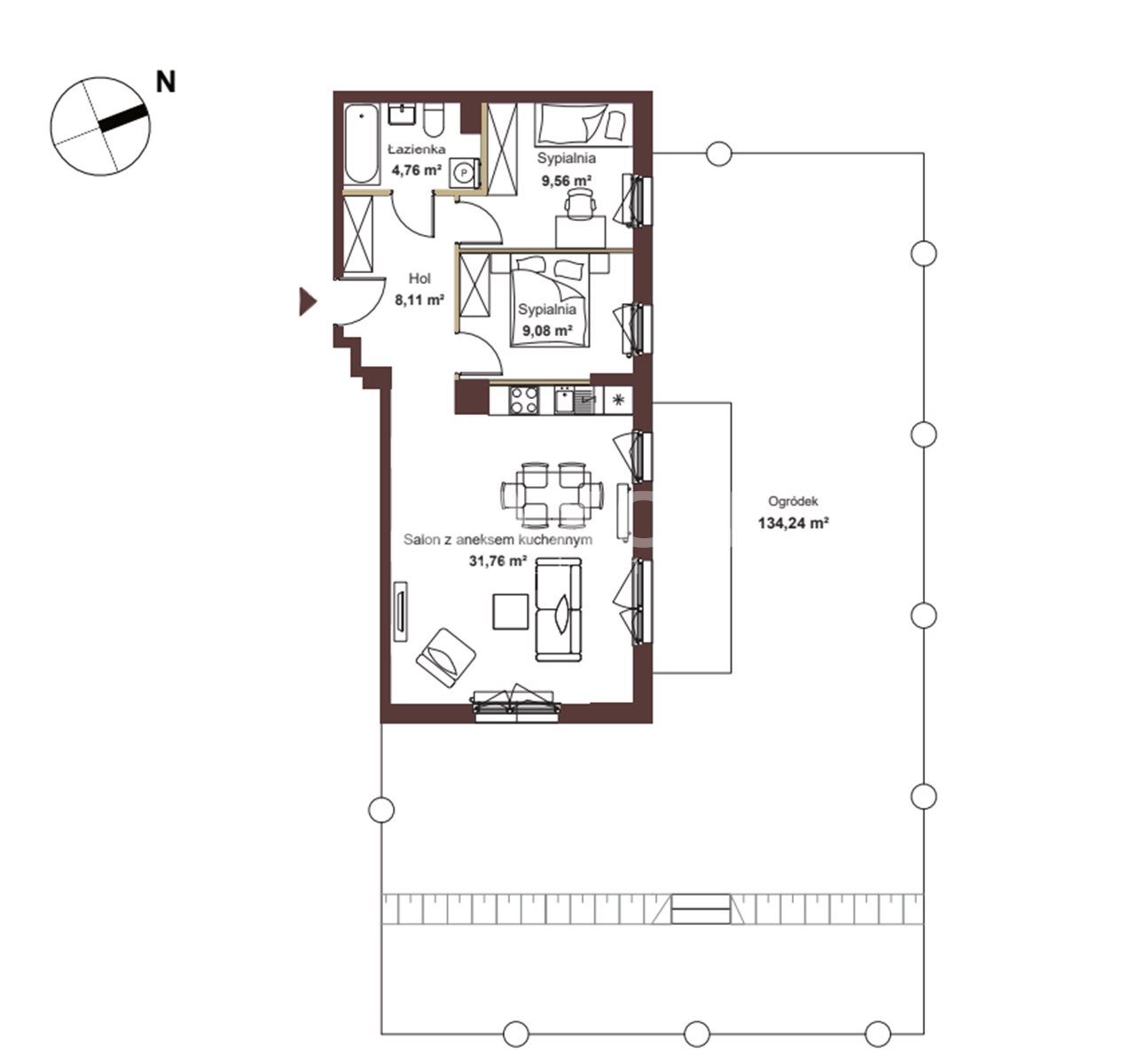
Exclusive 3-bedroom apartment of 63.27sqm with Garden of 134.24sqm situated on the first floor (Nr8)

A dedicated family garage can be purchased for the apartment.

Developer's prices. Purchase Without Agency Commission. We are the developer's third-party sales office

Invite you in:

  • Living room with kitchenette (31.76)
  • bedroom 1 (9.08)
  • bedroom 2 (9.56)
  • bathroom (4.76)
  • hall (8.11)
  • garden (134.24)

Purchasing a parking space, garage space, or storage unit is not mandatory. !!!!

On the territory of the estate there are separate parking lots of the free zone - not paid.

  • Parking space in front of the building - price 15,000 PLN
  • Garage space / family garage - price 35,000 PLN
  • Storage units - price 3,900 PLN per sq.m.

Investment realized on the border of Białołęka and Jabłonna.

Involving the construction of intimately designed three-story and four-story buildings with one underground storey (garages and storage rooms).

This is an oasis of peace and tranquility. The estate has direct access to the forest, where you can walk with your pets.

We have prepared the most desirable layouts for you to choose from - from two-room intimate asylums from 30 sqm to spacious four-room apartments of up to 80 sqm.

All apartments will be with functional balconies or terraces. Some apartments located on the first floor will have their own garden.

NEW apartments in developer condition at an excellent price !!

.

Building

A 4-story building equipped with elevators with spacious cabins. In the underground storey will be located a garage hall.

There will be storage rooms and cart rooms in the buildings.

We will also offer parking spaces in an outdoor parking lot for purchased apartments. In order to provide residents with a sense of security, the project area will be fenced.

.

Location

Location

The residential project is being developed right on the border of Białołęka and Jabłonna.

The uniqueness of this investment, aimed at people who value contact with nature and at the same time like to enjoy the charms of the city, is determined by its attractive location - a short distance from Warsaw and a picturesque, peaceful area with a forest in the background.

In the immediate vicinity:

  • supermarket 300meters
  • bus stop 300 meters - ZTM lines ( 731, 741) to Warsaw, Legionowo and Chotomow
  • preschool - approx. 0.9 km
  • school - about 1.8 km
  • Kaufland, Biedronka, OBI, Leroy Merlin a little further North Gallery
    a short distance from important communication points: Modlinska Street - 1 km, North Bridge - 6.8 km
  • short access time:Metro Młociny - by car 20 min., by public transport 30 min.
  • Centre of Warsaw - by car 35 min., by public transport - 45 min.

We are an external Developer's Sales Office we do not charge commissions from clients.

The building will be ready by the end of 2025. Deadline to receive keys 1st quarter 2026.

Purchase from the primary market without PCC.

Please call 7 days a week (9am-2pm)

.

All locations on the map are approximate.

Floor plan

Don't hesitate to contact us

Beata Palaszek

Ekspert ds. Nieruchomości

Call:

Zainteresowała Cię nasza oferta lub szukasz podobnej nieruchomości? Zapraszamy do kontaktu!



Near offers

0%
4 rooms, 4 floor, 2025 year
Warszawa , Białołęka
809 000 zł

11 236 zł/sqm

72 sqm

4 rooms

0%
3 rooms, 1 floor, 2024 year
Warszawa , Białołęka
699 000 zł

10 527 zł/sqm

66 sqm

3 rooms

0%
2 rooms, ground floor, 2025 year
Warszawa , Białołęka
509 000 zł

11 508 zł/sqm

44 sqm

2 rooms

0%
2 rooms, ground floor, 2025 year
Warszawa , Białołęka
495 000 zł

11 432 zł/sqm

43 sqm

2 rooms

0%
2 rooms, ground floor, 2025 year
Warszawa , Białołęka
496 000 zł

11 361 zł/sqm

44 sqm

2 rooms

1/12